+375 (44) 555-90-70

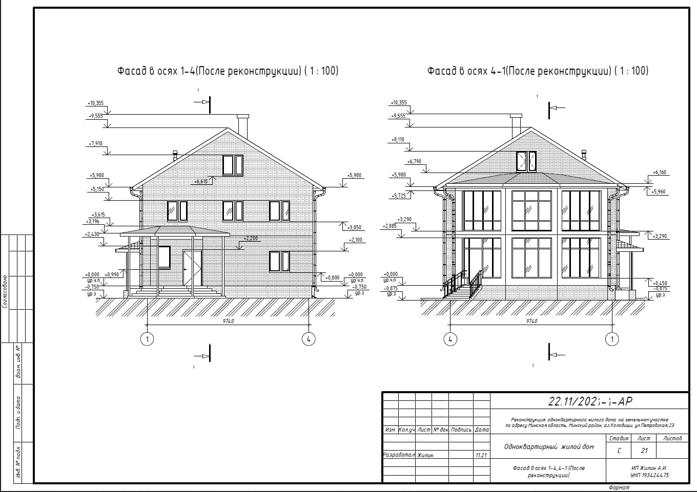
Проект реконструкции частного дома

Разработка проекта на пристройку к дому, перепланировку, увеличение, разделение дома на квартиры, надстройка этажей и др.

Наши услуги

Более 5 лет работаем в сфере проектирования частных домов

Архитектурный проект

от800руб.
  • известны все изменения по дому;
  • есть все исходные данные для разработки проекта;
  • разработка комплекта чертежей для согласования проекта реконструкции;
  • необходим для получения согласования проекта реконструкции для начала строительно-монтажных работ.

Строительный проект

от1500руб.
  • выбор наиболее рациональных и оптимальных конструктивных решений;
  • полный комплект чертежей для строительства дома;
  • рассчитаны все строительные конструкции;
  • можно рассчитать полную смету строительства дома.

Ландшафтный проект

от1200руб.
  • План благоустройства и озеленения;
  • Стилистические примеры;
  • План мощения;
  • Разбивочный план (размерный;
  • Схема освещения;
  • Дендроплан (детальный план озеленения;
  • 3д визуализация схематическая.

Согласование "Под ключ"

от2000руб.
  • получение разрешительной документации на реконструкцию;
  • разработка архитектурного проекта;
  • согласование проекта с необходимыми инстанциями;

Ввод в эксплуатацию

  • сбор полного комплекта документов;
  • работа со всеми необходимыми инстанциями для успешного ввода в эксплуатацию;
  • получение нового техпаспорта и свидетельства о госрегистрации на недвижимость.

Сопутствующие услуги

  • Инженерно-геологические и геодезические изыскания
  • Инженерное обследование зданий
  • Расчёт строительных конструкций
  • Дизайн интерьера
  • Строительно-монтажные работы

Эскизный проект

  • определение будущей концепции дома с учётом изменений;
  • разработка планов, фасадов и визуализации (при необходимости);
  • необходим для получения разрешительной документации на реконструкцию дома.
от800руб.

Архитектурный проект

  • известны все изменения по дому;
  • есть все исходные данные для разработки проекта;
  • разработка комплекта чертежей для согласования проекта реконструкции;
  • необходим для получения согласования проекта реконструкции для начала строительно-монтажных работ.
от1000руб.

Строительный проект

  • выбор наиболее рациональных и оптимальных конструктивных решений;
  • полный комплект чертежей для строительства дома;
  • рассчитаны все строительные конструкции;
  • можно рассчитать полную смету строительства дома.
от1500руб.

Согласование "под ключ"

  • получение разрешительной документации на реконструкцию;
  • разработка архитектурного проекта;
  • согласование проекта с необходимыми инстанциями;
  • ввод объекта в эксплуатацию.
от2000руб.

Ввод объекта в эксплуатацию

  • сбор полного комплекта документов;
  • работа со всеми необходимыми инстанциями для успешного ввода в эксплуатацию;
  • получение нового техпаспорта и свидетельства о госрегистрации на недвижимость.

Сопутствующие услуги

  • Инженерно-геологические и геодезические изыскания
  • Инженерное обследование зданий
  • Расчёт строительных конструкций
  • Ландшафтный дизайн
  • Дизайн интерьера
  • Строительно-монтажные работы

Онлайн-калькулятор

Узнайте примерную стоимость Вашего проекта за 1 минуту

Примеры наших работ

Мы гарантируем качество

План №1
План №2
План №3

Как мы работаем

Работа с нами будет состоять из 4х этапов

Заявка и бесплатная консультация

Ознакомимся с Вашей задачей, предложим варианты решения, определим необходимый перечень услуг, рассчитаем стоимость.

1 этап
2 этап

Документальное оформление

Подпишем договор на разработку проектной документации, утвердим техническое задание. Зафиксируем цену и сроки.

Разработка проекта

В течение 3-10 дней выполняем проектные работы. Подготавливаем полный пакет документов.

3 этап
4 этап

Передача результата работы

Передаем Вам проект, производим расчет.

С нами выгодно!

Бесплатная консультация

Подробно проконсультируем по вопросам реконструкции частных домов. Проанализируем Ваш случай, предложим оптимальное решение, рассчитаем стоимость разработки проектной документации.

Полный спектр услуг

Выполним любые задачи по проектированию. Если требуется, окажем сопутствующие услуги: геодезия, геология, расчёт конструктива, инженерное обследование, ландшафтный дизайн, дизайн интерьера, строительно-монтажные работы.

Фиксированная стоимость

Перед началом работ заполняем техническое задание и фиксируем цену.
Стоимость работ при разработке проекта остается без изменений.

Гарантия согласования

Все наши проекты проходят согласование. В случае необходимости внесения изменений и правок, делаем это без дополнительной оплаты.

Получите наше коммерческое предложение
  • с полным перечнем необходимых документов
  • и точным расчётом стоимости проекта

Скидки и акции

Для того, чтобы воспользоваться акцией, нажмите на кнопку "получить скидку" под интересующим Вас предложением. Скидки суммируются. Можно получить несколько скидок на одного человека.

-5% На архитектурный проект

Скидка действует до 01.01.2023

-5% На комплект документов для исполкома

Скидка действует до 01.01.2023

-10% На согласование "под ключ"

Скидка действует до 01.01.2023

О нас

Очевидно, что индивидуальное проектирование домов – это комплексная задача, наполненная большим количеством переменных и зависимых данных.

Однако, даже при столь сложной основе, мы можем гарантировать: неизменность цены, индивидуальный подход и результат, отвечающий задуманному.

Заказывая у нас проект реконструкции, Вы получаете весь опыт команды квалифицированных специалистов, занимающихся проектированием частных домов более 10 лет.

Мы знаем подводные камни и тонкости процедуры согласования. Знаем, как сделать проект, который пройдёт все бюрократические процедуры.

План №1
План №2
План №3
План №4
План №5
План №6
План №7
План №8

Ваша заявка принята!
Скоро наш менеджер свяжется с Вами